EXTERIOR2.jpg

Co-location Community Library + Affordable Housing Prototype for Los Angeles

University of Southern California, School of Architecture

Spring 2020

[Digital drawings]

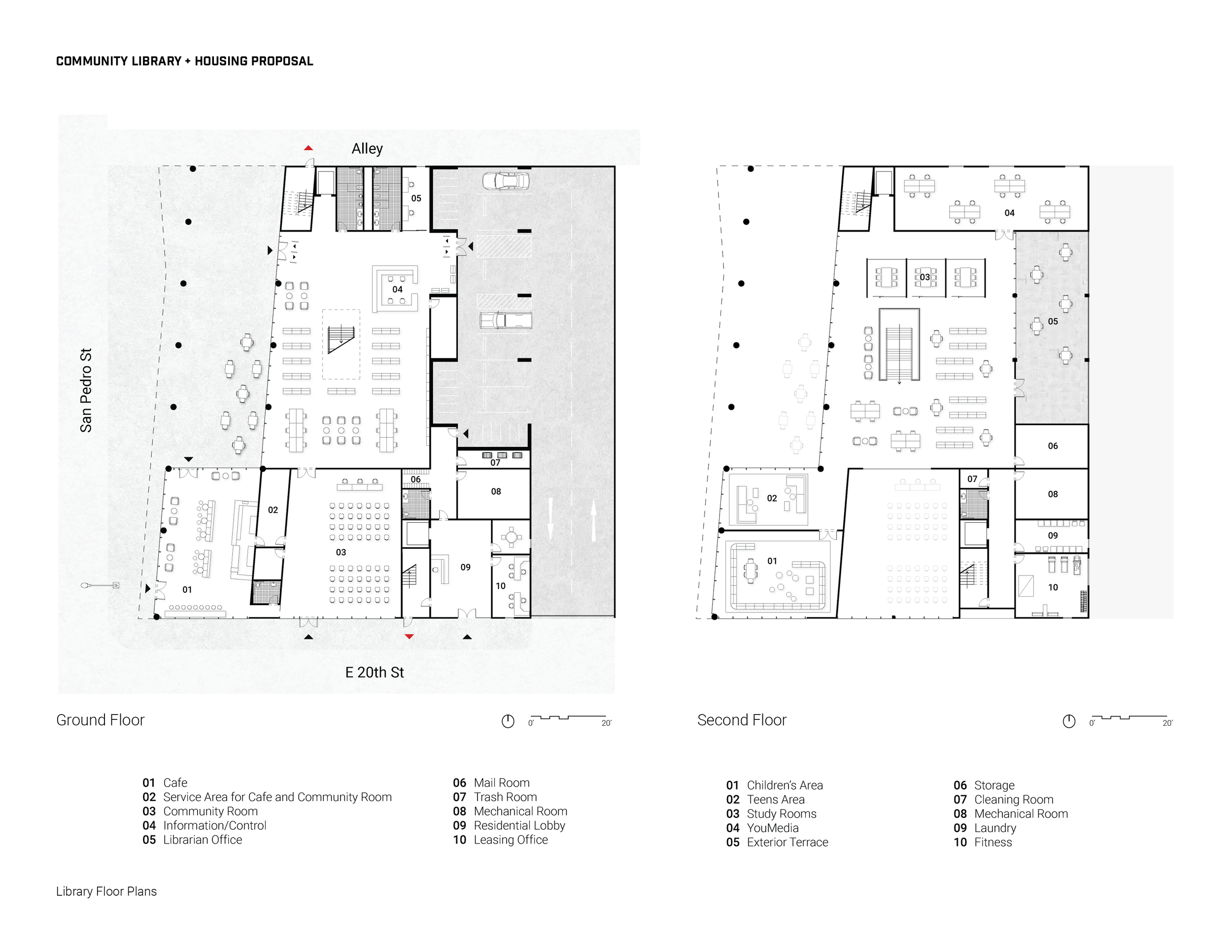
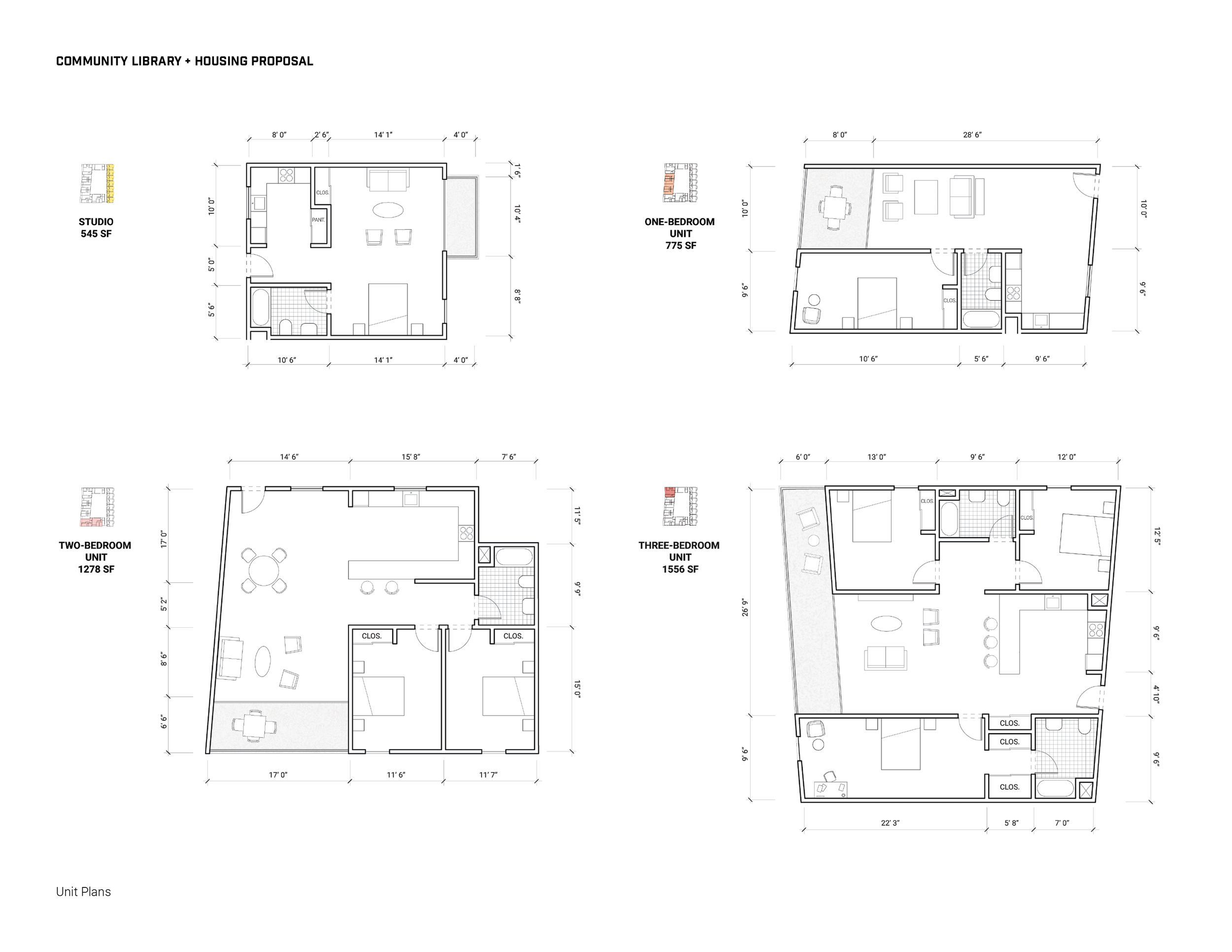
The Co-location Community Library and Housing Prototype for Los Angeles is a 48-unit affordable housing project of studios, 1, 2, and 3-bedroom units. The first two levels contain a library and a cafe that visually connects to the street in order to activate the street and draw people inside. The courtyard typology helps to enhance daylight and cross-ventilation for all units. The highest floor has a rooftop garden and two terraces with panoramic views of the area for residents to share and enjoy while building a strong sense of community.

Co-Location Community Library + Affordable Housing Prototype for Los Angeles

Spring 2020  | University of Southern California, School of Architecture


Project Overview

The Co-location Community Library and Housing Prototype for Los Angeles is a 48-unit affordable housing project of studios, 1, 2, and 3-bedroom units. The first two levels contain a library and a cafe that visually connects to the street in order to activate the street and draw people inside. The courtyard typology helps to enhance daylight and cross-ventilation for all units. The highest floor has a rooftop garden and two terraces with panoramic views of the area for residents to share and enjoy while building a strong sense of community. 

 Site Analysis

Design concept

Design Proposal